
本設備為法國引進技術用于輸送干燥粉料,結構上采用瘦高型,供氣系統采用分段供氣,確保輸送穩定可靠,透氣層選用新五層帆布輸送板,用硅橡膠密封,有效地防止漏氣、漏粉。
主要技術參數
型號/規格 | XD-125 | XD-150 | XD-170 | XD-200 | XD-250 | XD-300 | XD-350 | XD-400 |
槽體寬度(mm) | 125 | 150 | 170 | 200 | 250 | 300 | 350 | 400 |
布置傾角 | 5°- 6°斜度(8.74%-10.51%) | |||||||
設計料層厚度(mm) | 40 | 50 | 65 | 85 | 85 | 190 | ||
輸送能力(傾角5°m3/h) | 20 | 30 | 45 | 65 | 90 | 115 | 130 | 150 |
工作壓力(KPa) | 3.5-5 | |||||||
耗氣量(m3/m透氣min) | 1.5-3 | |||||||
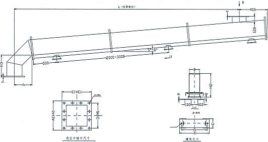
槽體尺寸表
規格B | A1 | D | H | H1 | L1 |
125 | 215 | 376 | 220 | 60 | 2000 1500 2500 |
150 | 240 | 416 | 240 | 60 | |
170 | 260 | 426 | 260 | 70 | |
200 | 290 | 436 | 260 | 80 | |
250 | 340 | 436 | 260 | 80 | |
300 | 390 | 446 | 270 | 80 | |
350 | 440 | 446 | 270 | 90 | |
400 | 490 | 456 | 270 | 90 |

斜槽安裝尺寸
規格B | A | P | Q | G | K | A1 | T | C1 | N | D | M1 | H3 | H2 |
125 | 200 | 8 | 40 | 200 | 250 | 200 | 5 | 280 | 12 | 10 | 80 | 200 | 286 |
150 | 250 | 8 | 40 | 220 | 250 | 200 | 5 | 280 | 12 | 10 | 80 | 250 | 306 |
170 | 250 | 8 | 40 | 240 | 270 | 250 | 5 | 340 | 12 | 10 | 100 | 250 | 336 |
200 | 250 | 8 | 40 | 270 | 300 | 250 | 5 | 340 | 12 | 10 | 100 | 250 | 346 |
250 | 300 | 10 | 40 | 320 | 350 | 250 | 5 | 340 | 12 | 12 | 100 | 300 | 346 |
300 | 300 | 10 | 45 | 370 | 400 | 300 | 8 | 390 | 12 | 12 | 120 | 300 | 356 |
350 | 300 | 10 | 45 | 420 | 450 | 350 | 8 | 440 | 12 | 12 | 135 | 300 | 356 |
400 | 300 | 10 | 45 | 470 | 450 | 400 | 10 | 500 | 12 | 14 | 135 | 300 | 366 |
斜槽進風口聯接尺寸圖

| 公司名稱: | * | ||
| 聯系人: | * | ||
| 聯系電話: | * | ||
| 電子郵箱: | |||
| 聯系地址: | |||
| 需求內容: | * | ||