
本產品采用正壓氣力輸送方式輸送粉末狀物料,適用于電廠粉煤灰、水泥、水泥生料、礦粉等輸送,可根據具體地形布置輸送管道,實現集中、分散、大高度、長距離輸送,輸送過程不受氣候條件影響,能確保物料不受潮,利于生產和環境保護,本設備配置自動化操作臺,可實現手動和自動控制,自動控制采用繼電器或微機兩種形式。通過長期運行,實踐證明,其性能穩定,質量可靠,無粉塵污染,是理想的氣力輸送設備。
主要技術參數
型號/參數 | L-0.8 | L-1.2 | L-1.4 | L-1.6 | L-1.8 | L-2.0 | L-2.2 | L-2.4 |
發送器內徑(mm) | 800 | 1200 | 1400 | 1600 | 1800 | 2000 | 2200 | 2400 |
總容積(m3) | 0.35 | 1.32 | 21.5 | 3 | 4.12 | 5 | 7.5 | 9.25 |
配用輸送管直徑 | 50 | 100 | 100 | 100 | 100 | 100-125 | 150-175 | 150-175 |
設計工作壓力 | 0.78MPa | |||||||
工作壓力 | 0.3-0.6MPa(按輸送距離而定) | |||||||
使用溫度 | ≤120℃ | |||||||
發送器主要材質 | Q235-A | |||||||
輸送距離(m) | 300 | 可達1000 | ||||||
耗氣量(m3/min) | 1-2 | 6 | 6-10 | 6-10 | 10-20 | 10-20 | 20-30 | 20-30 |
輸送量 | 3 | 8 | 15 | 15 | 25 | 30 | 36 | 42 |
以上表內所列數據為粉煤灰在輸送管當量長度250米內的實測值。
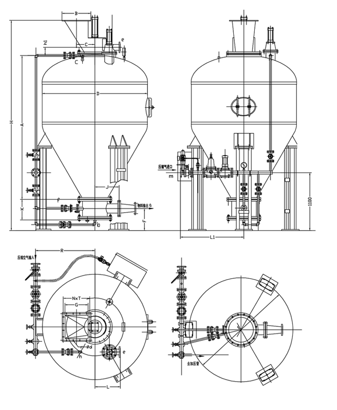
單發送器外形及安裝尺寸表
代號/型號 | L-0.8 | L-1.2 | L-1.4 | L-1.6 | L-1.8 | L-2.0 | L-2.2 | L-2.4 |
A | 1081 | 1653 | 2002 | 2300 | 2500 | 2700 | 2964 | 3190 |
B | 400 | 500 | 600 | 800 | ||||
C | 250 | 320 | 370 | 460 | ||||
D | 816 | 1220 | 1420 | 1628 | 1828 | 2028 | 2228 | 2428 |
E | 810 | 1350 | 1500 | 1600 | 1800 | 2000 | 2200 | 2400 |
F | 249 | 390 | 380 | 480 | 396 | 405 | ||
G | 320 | 400 | 500 | 700 | ||||
H | 1980 | 2780 | 3200 | 3600 | 3810 | 4060 | 4500 | 4735 |
K | 200 | 360 | 480 | |||||
J | 280 | 420 | 550 | |||||
L | 215 | 395 | 410 | 470 | 465 | 550 | ||
M | M20X400 | M36X500 | M36X500 | |||||
I | 70 | 190 | 200 | |||||
n-d | 16-ф11 | 16-ф13 | 20-ф13 | |||||
NxT | 4X90 | 4X112.5 | 5X110 | 5X152 | ||||
h1 | 150 | 150 | 175 | 175 | 110 | 110 | 115 | 115 |
L1 | 1280 | 1350 | 1580 | 1580 | 1580 | 1580 | 1580 | 1580 |
說明:當進行長距離輸送時,供氣管m將根據實際情況調整加大。 | ||||||||
發送器及管道接口一覽表
代號/型號 | L-0.8 | L-1.2 | L-1.4 | L-1.6 | L-1.8 | L-2.0 | L-2.2 | L-2.4 |
a | Dg50 | Dg100 | Dg150 | |||||
b | Dg25 | Dg40 | ||||||
e | Dg40 | Dg80 | Dg100 | |||||
f | Dg25 | Dg40 | ||||||
h | Dg25 | Dg40 | Dg50 | |||||
m | Dg50\Dg80 | |||||||
單發送器尺寸及安裝示意圖
| 公司名稱: | * | ||
| 聯系人: | * | ||
| 聯系電話: | * | ||
| 電子郵箱: | |||
| 聯系地址: | |||
| 需求內容: | * | ||