
本設備為火電廠粉煤灰專用加水調濕攪拌機裝置,其特點:出力大,攪拌均勻,無粉塵污染,噪聲小,是目前較先進的攪拌設備。
主要技術參數
參數及型號 | SS-150 | SS-100(SS-60) |
攪拌葉片直徑(mm) | 700 | 660 |
生產能力(t/h) | 150 | 100(60) |
轉速(rpm) | 42 | 42 |
電機功率(kw) | 22 | 15 |
減速機型號 | JZQ500 | BWY33-23 |
進水管水壓(MPa) | 0.4-0.6 | 0.2-0.4 |
含水率 | 15-20% | |
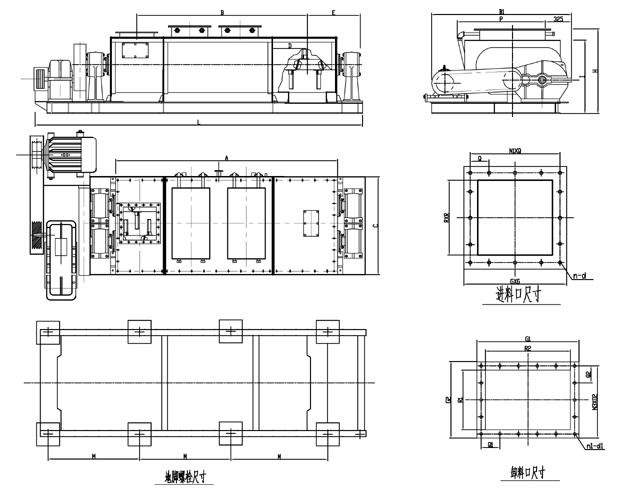
外形尺寸
型號/代號 | A | B | B1 | C | D | E | F | G | H | I | L | M | N | P | Q |
SS-150 | 3230 | 2450 | 2050 | 1380 | 570 | 765 | 1160 | 642 | 1342 | 1160 | 4565 | 1265 | 1330 | 1500 | 116 |
SS-100 | 2730 | 2100 | 1570 | 1104 | 800 | 444 | 716 | 520 | 1296 | 580 | 3882 | 1050 | 1100 | 1196 | 115 |
型號/代號 | Q1 | Q2 | R | R1 | R2 | S | T | N1 | N2 | N3 | n | n1 | d | d1 | |
SS-150 | 116 | 116 | 500 | 500 | 500 | 530 | 660 | 4 | 4 | 4 | 16 | 16 | Ф14 | Ф14 | |
SS-100 | 115 | 115 | 400 | 400 | 630 | 500 | 580 | 4 | 4 | 4 | 16 | 16 | Ф14 | Ф14 |
外形尺寸圖
