
DMC型脈沖袋式倉頂除塵器適宜布置在各種粉料貯存庫的頂部,用于過濾含塵氣體。
◎ 主要技術參數
DMC型脈沖袋式倉頂除塵器主要技術參數見下表,在選型時應注意入口粉塵濃度,在技術性能上,透過濾袋的氣流速度(即過濾風速)與氣體含塵濃度成反比,因此,在確定過濾面積時,還須滿足濾袋的聚塵能力(即兩次清灰期間濾袋單位面積上允許積塵數量),一般聚塵能力不大于400克/m2,可按下式計算:
聚塵能力=入口氣體含塵濃度×過濾風速×兩次清灰間隔時間,計算結果如超過聚塵能力,應調整過濾風速,增加過濾面積。
主要技術參數
技術參數 | DMC-24 | DMC-36 | DMC-48 | DMC-60 | DMC-72 | DMC-84 | DMC-96 | DMC-108 | DMC-120 |
過濾面積(m2) | 18 | 27 | 36 | 45 | 54 | 63 | 72 | 81 | 90 |
濾袋數量 | 24 | 36 | 48 | 60 | 72 | 84 | 96 | 108 | 120 |
濾袋規格 | Ф120×2000 | ||||||||
工作溫度(℃) | <120°(滌綸) | ||||||||
設備壓力(Pa) | 1000-1500 | ||||||||
除塵效率 | 99% | ||||||||
入口含塵濃度 | <15(g/ m3) | ||||||||
過濾風速m/min | 0.5-4 | ||||||||
處理風量m3/h | 540~ 4300 | 810~ 6480 | 1080~ 8640 | 1350~ 10800 | 1620~ 12900 | 1890~ 15100 | 2160~ 17200 | 2430~ 19400 | 2700~ 21600 |
噴吹氣氣壓(MPa) | 0.5-0.7 | ||||||||
脈沖電磁閥(個) | 4 | 6 | 8 | 10 | 12 | 14 | 16 | 18 | 20 |
脈沖寬度(m) | 0.1-0.2 | ||||||||
脈沖周期(s) | 60-120 | ||||||||
脈沖間隔(s) | 1-50 | ||||||||
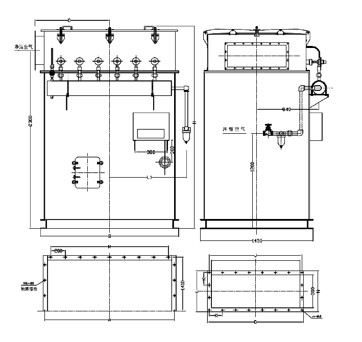
外形尺寸
代號 | A | B | C | D | G | H | J | L | M | N | I | L1 | K | K1 | n-d | n1-d1 |
DMC24 | 960 | 1000 | 360 | 470 | 3/4″ | 2625 | 440 | 339 | 1200 | 370 | 400 | 620 | 110 | 113 | 14-Ф11 | 24-18 |
DMC36 | 1360 | 1400 | 755 | 466 | 3/4″ | 2625 | 441 | 339 | 1000 | 366 | 400 | 800 | 147 | 113 | 12-Ф10 | 28-18 |
DMC48 | 1760 | 1800 | 955 | 890 | 1″ | 2625 | 840 | 339 | 1200 | 370 | 800 | 1020 | 110 | 113 | 20-Ф10 | 32-18 |
DMC60 | 2160 | 2250 | 1200 | 866 | 1″ | 2650 | 836 | 339 | 2000 | 366 | 800 | 1250 | 120 | 120 | 20-Ф11 | 36-18 |
DMC72 | 2614 | 2650 | 1400 | 870 | 1″ | 2650 | 840 | 339 | 2400 | 370 | 800 | 1390 | 120 | 113 | 20-Ф11 | 40-18 |
DMC84 | 3014 | 3050 | 1600 | 1270 | 1″ | 2650 | 1240 | 339 | 2800 | 370 | 1200 | 1590 | 120 | 113 | 26-Ф11 | 44-18 |
DMC96 | 3410 | 3450 | 1835 | 1270 | 1″ | 2650 | 1240 | 339 | 3200 | 370 | 1200 | 1755 | 124 | 113 | 26-Ф11 | 48-18 |
DMC108 | 3850 | 3900 | 2035 | 1450 | 1″ | 2650 | 1400 | 339 | 3600 | 370 | 1360 | 120 | 113 | 34-Ф11 | 52-18 | |
DMC120 | 4250 | 4300 | 2235 | 1450 | 1″ | 2650 | 1400 | 336 | 4000 | 366 | 1360 | 120 | 120 | 34-Ф11 | 26-18 |
外形尺寸圖
